This tiny home has been outfitted with off-grid capabilities and can be deconstructed for transport in as little as 4 hours.
Tiny homes are all the rage nowadays, but few allow their owners to live a mobile lifestyle like an RV or renovated bus might. To present an alternative solution, Estonian design collective Kodasema created KODA, a tiny prefabricated home that can move anywhere its owners go.
The KODA tiny home has been outfitted with off-grid capabilities and can be disassembled and prepped for relocation in a short period of time. In as little as four hours, one can deconstruct their tiny house and move on to the next location!
The portable home is primarily made of concrete and is constructed with factory-made components chosen for their strength and energy-efficient properties. Inhabitat relays that the intelligent materials ensure the structure remains sturdy and can be assembled on varying surfaces without need for a foundation.
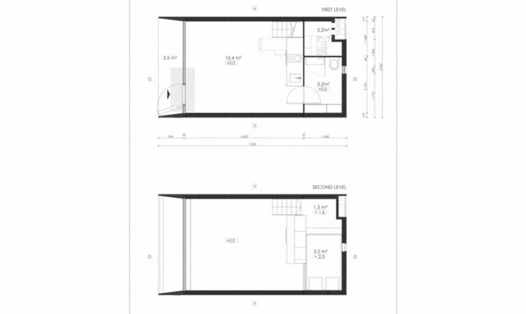
It might only be 25-square meters in size, but the KODA home has been intelligently designed to make use of its limited space. A full-height glazing has been slightly set back to make room for a built-in terrace. This shields the interior from a harsh solar gain. Additionally, the design affords privacy, as the kitchen, bathroom and loft are all located in the rear of the home. LEDs light up the KODA home at night and rooftop solar panels power the unit to lower one’s carbon footprint.
For those that desire to live off-grid, this prefabricated home can be utilized for that purpose. At the same time, it’s been outfitted with water, sewage, and electricity hookups to ensure optimum comfort.
According to the designers, the house is smarter than most units; an IT system has been built-in to help the home learn from and adjust to its different surroundings.
Thanks to quadruple glazing and vacuum-insulated concrete walls, energy demands are minimized and internal temperature conditions are kept relatively stable. Furthermore, all materials are non-toxic.
Kodasema writes:
“In our minds KODA can become whatever you want: a city centre home, a lakeside summer house, a cosy café, an office, workshop or studio or even a classroom. Its clever design provides the inspiration to make best use of every square inch of space and envisage how the built-in components, even the walls, can be adjusted to meet their purpose most effectively.”
If the 25-square-foot home is too small for you, keep in mind that each prefab home is modular and can be connected to another to create a larger living space.
The homes will be sold in Estonia starting later this fall and will go for about 85,000€ (VAT not included). Add-ons – including furniture and technical systems – will affect the final price. The design collective has not yet announced plans to sell KODA internationally.



















10-7-16 we need somewhere else to live.Now, by 10/15/16
Like to see one
25sqft? That’s smaller than a prison cell
Copy editing mistake. Earlier in the article it gave the area as 25 square metres (approx 270 square feet).